Toimistotila 180 m²
Moderni ja tilava toimistotila liikekeskus Centren kolmannessa kerroksessa
Tilava ja moderni toimisto ydinkeskustassa
Tämä selkeälinjainen toimistotila täyttää kaikki nykyaikaisen toimistotilan vaatimukset ja soveltuu hyvin 8-14 hengen toimistoksi. Tämä toimistotila soveltuu erityisesti toimijoille, joka arvostaa korkeatasoista toimistotilaa ja äänieristettyjä työhuoneita.
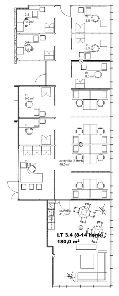
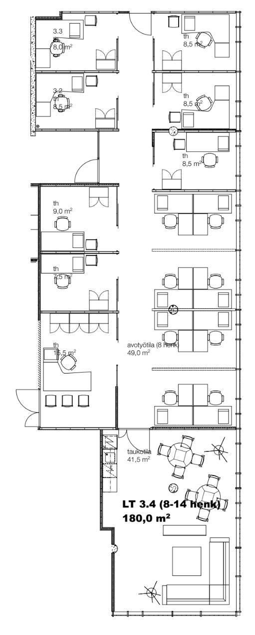
Havainnekuvan mukainen tilajako koostuu äänieristetyistä tyohuoneista (11 kpl) ja neuvotteluhuoneesta sekä valoisasta toimistokeittiö ja taukotilasta. Liitteenä tilan pohjakuva tilajaosta. Toimistotilaa voidaan räätälöidä asiakkaan tarpeiden mukaan.
Halutessasi voit vuokrata edulliset autopaikat Centren parkkihallista, vain hissimatkan päässä toimistostasi.
Toimistotila vapautuu sopimuksen mukaan.
Sovi esittely
Ominaisuudet & vapautuminen
|
Toimitilan tyyppi 718_9049bc-e4> |
Toimistotila 718_bcc9ea-f1> |
|
Pinta-ala 718_d33232-c2> |
180 m² 718_b44657-32> |
|
Henkilömäärä 718_136edf-e9> |
8 – 14 718_f246d9-4d> |
|
Huoneiston kokoonpano 718_611bcd-dd> |
Toimistokeittiö / taukotila / neuvotteluhuone 718_43e1c6-a1> |
|
Kerros 718_0c17e8-74> |
3 718_628888-d8> |
|
Vapautuminen 718_1d7cd8-32> |
Sopimuksen mukaan 718_a21a8f-a6> |
Muuta sujuvammin Liikekeskus Centreen
Teemme muutosta teille mahdollisimman mutkattoman. Kartoitamme toiveenne ja kokoamme niitä vastaavan tilakokonaisuuden. Suunnittelijamme tukevat uuden työympäristönne toteutusta alusta loppuun, aina tehokkaasta tilankäytöstä tarkoituksenmukaisiin materiaalivalintoihin.
Luotettava kumppanimme Martela hoitaa halutessanne muuton ovelta ovelle. Kalusteet järjestyvät samasta yhteydessä: Martelan valikoimasta voitte ostaa, vuokrata tai valita kierrätettyjä vaihtoehtoja. Lisäksi käytössänne ovat kilpailutetut ja luotettavat kumppanimme, joilta saatte palvelut esimerkiksi toimistonne ylläpitosiivoukseen.
Centressä pääset sujuvammin työn ja kaikkien palveluiden äärelle Lappeenrannan ydinkeskustaan.







