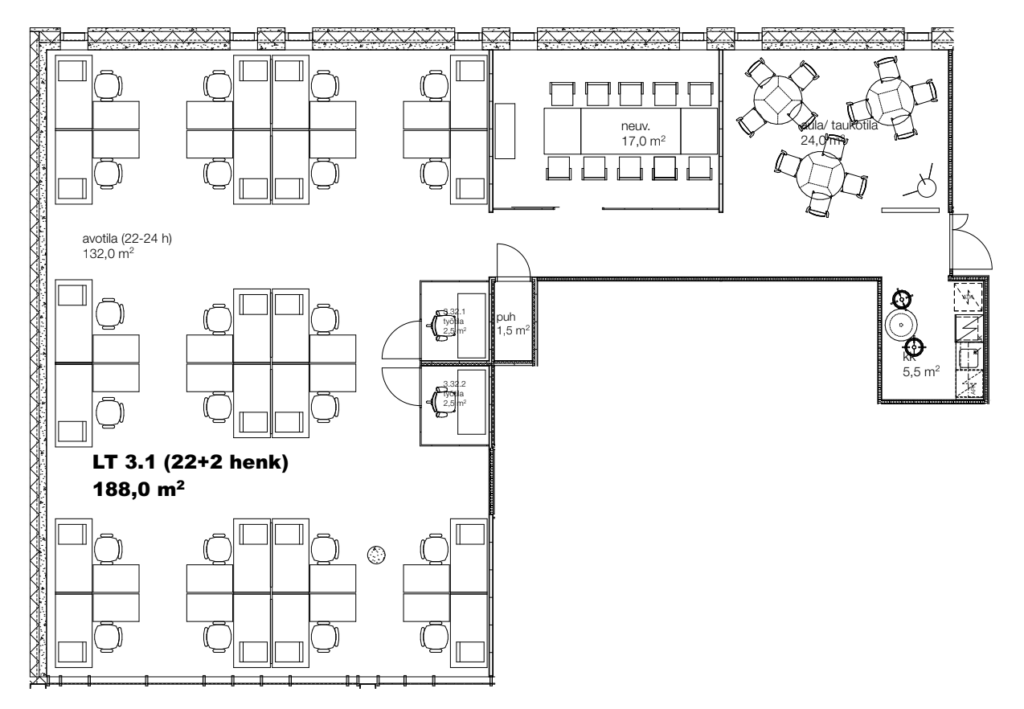
Toimistotila 188 m²
Moderni ja tilava toimistotila liikekeskus Centren kolmannessa kerroksessa
Modernia toimistotilaa ydinkeskustassa
Moderni ja tilava toimistotila liikekeskus Centren kolmannessa kerroksessa, aivan ydinkeskustassa.
Tämä selkeä ja valoisa tila soveltuu hyvin noin 20–24 hengen toimistoksi. Tilajako tarjoaa sopivassa suhteessa avotilaa, äänieristettyjä työskentelytiloja ja tilavan neuvotteluhuoneen.
Tila voidaan yhdistää viereiseen toimistoon, jolloin muodostuu yhtenäinen noin 280–441 m² kokonaisuus. Vuokralaisella on mahdollisuus vuokrata edullisia autopaikkoja Centren parkkihallista, vain hissimatkan päässä toimistosta.
Tila on heti vapaa.
Sovi esittely
Ominaisuudet & vapautuminen
|
Toimitilan tyyppi 647_ae4089-86> |
Toimistotila 647_8f8a87-2c> |
|
Pinta-ala 647_10c710-12> |
188 m² 647_67e718-b0> |
|
Henkilömäärä 647_6c95ab-bd> |
20 – 24 647_c87fbe-9e> |
|
Huoneiston kokoonpano 647_3f42a6-c0> |
Toimistokeittiö / aula-taukotila 647_01ac6a-21> |
|
Kerros 647_ade50c-5f> |
3 647_ece89c-99> |
|
Vapautuminen 647_c8b1b0-46> |
Heti vapaa 647_dd62f0-39> |
Muuta sujuvammin Liikekeskus Centreen
Teemme muutosta teille mahdollisimman mutkattoman. Kartoitamme toiveenne ja kokoamme niitä vastaavan tilakokonaisuuden. Suunnittelijamme tukevat uuden työympäristönne toteutusta alusta loppuun, aina tehokkaasta tilankäytöstä tarkoituksenmukaisiin materiaalivalintoihin.
Luotettava kumppanimme Martela hoitaa halutessanne muuton ovelta ovelle. Kalusteet järjestyvät samasta yhteydessä: Martelan valikoimasta voitte ostaa, vuokrata tai valita kierrätettyjä vaihtoehtoja. Lisäksi käytössänne ovat kilpailutetut ja luotettavat kumppanimme, joilta saatte palvelut esimerkiksi toimistonne ylläpitosiivoukseen.
Centressä pääset sujuvammin työn ja kaikkien palveluiden äärelle Lappeenrannan ydinkeskustaan.







